Jasne 3-pokojowe mieszkanie gotowe do zamieszkania

Mieszkanie na sprzedaż
510 000,00 PLN , Pow. 45,60 m2
Drukuj ofertę
Drukuj ofertę
Typ nieruchomości:
Mieszkanie
Powierzchnia:
45,60 m2
Typ transakcji:
sprzedaż
Liczba pokoi:
3
Lokalizacja:
Gdynia Obłuże , płk. Stanisława Dąbka
Rok budowy:
1978
Piętro:
8 na 10
Numer oferty:
226490
Cena za m2:
11 184,21 PLN
Kupujący nie płaci prowizji dla biura 

Na sprzedaż bardzo jasne, 3-pokojowe mieszkanie w bardzo dobrym stanie i idealnej lokalizacji.

LOKALIZACJA:
Mieszkanie zlokalizowane w Gdyni Obłuże przy ul. Płk. Dąbka 235, dzielnicy, dobrze skomunikowanej ze Śródmieściem (przystanek ok. 200 m) oraz innymi dzielnicami Gdyni. Dzielnica przedstawia bardzo ciekawą ofertę sportową, kulturalną i edukacyjną. Nie brakuje również terenów rekreacyjnych, a atrakcyjność dzielnicy podnosi dostęp do morza - 10 minut drogi do plaży na Babich Dołach, do Bulwaru Oksywskiego, jak również do plaż w Mechelinkach i Rewie. Znajduje się tu również ciekawa baza gastronomiczna i dobra opieka medyczna (kilka przychodni zdrowia). Niewątpliwym atutem lokalizacji jest niedaleka odległość od Akademii Marynarki Wojennej.
W niedalekiej odległości znajduje się pełna infrastruktura usługowo-handlowa, w tym Galeria Szperk. 

BUDYNEK:
Budynek dziesięciopiętrowy z wielkiej płyty, w bardzo dobrym stanie technicznym, po remoncie elewacji (z ociepleniem włącznie).
Przy budynku znajduje się duża ilość ogólnodostępnych miejsc parkingowych dla mieszkańców. Wejście do klatki schodowej zabezpieczone jest domofonem. Klatka schodowa po remoncie. Winda w bardzo dobrym stanie technicznym.

MIESZKANIE:
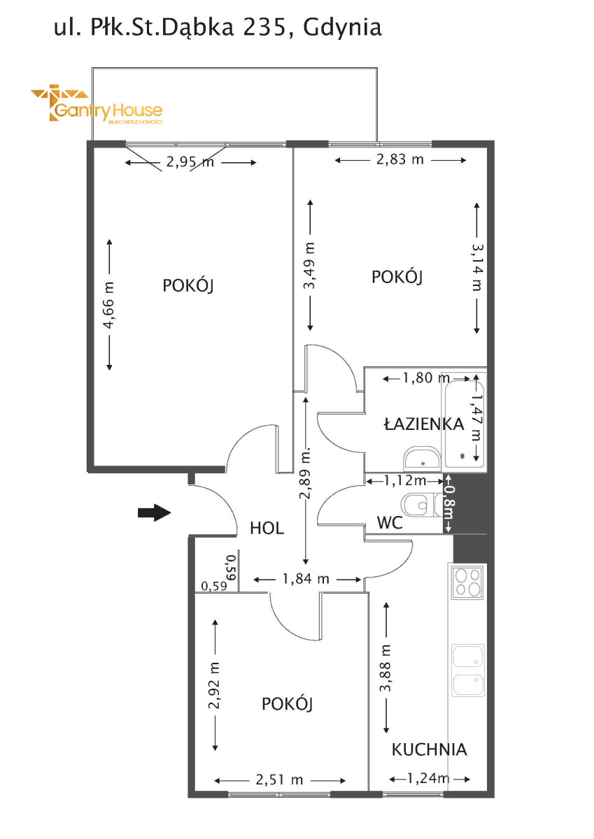
Mieszkanie o powierzchni 45,60 m2 w bardzo dobrym stanie, do zamieszkania.  Znajduje się na 8 piętrze z windą, stanowi odrębną nieruchomość z księgą wieczystą. Składa się z:
- salonu z wyjściem na balkon o pow. 13,7 m2,
- 2 pokoi o pow. 9,2 m2 i 7,3 m2,
- kuchni z oknem o pow. 6,5 m2,
- łazienki o pow. 2,7 m2,
- WC o pow. 0.9 m2,
- holu o pow. 5,3 m2.
Jest to mieszkanie rozkładowe, dwustronne, bardzo jasne i ciepłe. Okna salonu z balkonem i jednego pokoju wychodzą na płd.-wsch, kuchni i pokoju - na płn.-zach.
Drzwi wejściowe, antywłamaniowe.
Instalacja elektryczna miedziana.
Piony wod. - kan. zostały wymienione.
Okna z PCV.
Do mieszkania przynależy piwnica o pow. ok. 2 m2.

DODATKOWO:
Ogrzewanie oraz ciepła woda zapewniona jest przez sieć miejską.
Opłaty czynszowe na niewysokim poziomie. 
W mieszkaniu istnieje możliwość podłączenia do telewizji kablowej oraz Internetu.

DOKONAJ ZAKUPU Z BIUREM NIERUCHOMOŚCI GANTRY HOUSE !!!
SKORZYSTAJ Z PROFESJONALNEJ OBSŁUGI,
ZAPŁAĆ KORZYSTNĄ CENĘ I POCZUJ SIĘ BEZPIECZNIE !!!

GWARANTUJEMY:
- weryfikację stanu prawnego nieruchomości,
- bezpłatną i skuteczną pomoc w uzyskaniu kredytu,
- pomoc naszego Eksperta na każdym etapie zakupu nieruchomości,
- profesjonalna firma do przeprowadzki.

Więcej informacji na naszej stronie: gantryhouse.pl

Co zyskujesz, kupując z Gantry House?
Nie zapłacisz prowizji :) 
Pewny stan prawny: dokładnie weryfikuję status prawny nieruchomości, abyś czuł się bezpiecznie.
Optymalny kredyt: zapewniam bezpłatną i skuteczną pomoc w uzyskaniu najkorzystniejszego finansowania.
Wsparcie na każdym kroku: będziesz mieć moje wsparcie na każdym etapie procesu zakupu - od pierwszego kontaktu po przekazanie kluczy.
Bezpieczeństwo transakcji: kupujesz z nami bez obaw, dzięki ubezpieczeniu OC Biura Nieruchomości Gantry House na kwotę 500 000 EURO.
Nieprawidłowy adres E-mail